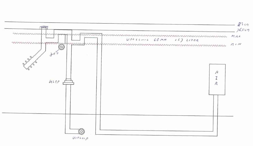
Hier onder vindt u een tekening die ik zelf heb gemaakt van de overloop in de door ons gekochte SPA.
De spa heeft een afmeting van 213 cm x 165 cm en zowel in de showroom als op internet staat dat hij een hoogte heeft van 90 cm. Helaas blijkt dit in werkelijkheid maar 83 cm te zijn.

Laat ik eerst wat uitleggen omdat deze tekening niet bekend is binnen het bedrijf waar de SPA is gekocht (uitspraak verkoper)
U ziet drie strakke horizontale lijnen.
De onderste lijn is de bovenrand van de onderbak.
Vanaf deze lijn heb ik alle punten gemeten
Onder deze lijn zit de uitloop (het kotspijpje)
De bovenste lijn is de bovenkant van de spa en die is gemeten vanaf de vloer (deze is 83 cm en dus geen 90 cm)
De lijn daar onder is de binnenrand van de SPA waar de knoppen op zijn gemonteerd. In deze tekening beperken we ons tot een vuldop om geurparels in te stoppen. Zelf gebruiken wij deze optie niet omdat de dop zo strak zit dat je daar een tang voor nodig hebt. Bovendien bekomt mij het gevoel dat dit ook niet goed werkt. Ik kom hier later op terug.
De twee gegolfde lijnen zijn het water niveau in minimale hoogte en de maximale hoogte waarbij de spa begint leeg te lopen.
De onderste waterlijn zit net boven de bovenste jet.
Volgens de leverancier zou de SPA gevuld moeten worden tot net onder de kussentjes. Dit zou 1,5 cm hoger zijn dan op deze tekening.

Wij hebben hem gevuld tot net boven de jet omdat de jet niet boven water mag komen anders dan spuit het water onder hoge druk tot 5,4 meter ver. En ik kan je vertellen dat je daar niet blij van wordt. En ja, de SPA zorgt twee keer per dag dat de leidingen en de jets worden doorgespoeld. Bij een te laag niveau wordt zowel het tuinhuis als een deel van de tuin besproeid met best wel heel veel water.
Rechts zit de AIR blower. Deze heeft geen zwemdiploma en moet dus droog blijven.
Het zakkammetje of de rugkrabber wat schuin links zit is een verdeelstuk waar alle slangen van de luchtroosters (luchtjets) of welke naam dan ook, op aangesloten zijn. deze zitten in de bodem van de kuip. Een logisch gevolg is dat het waterniveau in het pijpensysteem net zo hoog is als het waterniveau in de kuip zelf.
Gelukkig zit er in deze SPA het meest gehate kotspijpje (vanaf nu de uitloop onder aan de tekening), want anders zou het water doorstromen in de richting van de AIR pomp en zou de AIR pomp verdrinken. Nu nog één keer de benaming van de uitloop. Het restantje water wat zich bevind in de leiding wordt er door de luchtdruk telkens bij het opstarten van de AIR pomp uitgeblazen met een kotsend geluid. Hetzelfde gebeurd ook als de AIR blower stopt. het water loopt snel terug de buis in en loopt over in het zogenaamde sluizensysteem en komt daarna naar buiten via de uitloop. Erg vervelend als de spa binnen staat.
Om nu te voorkomen dat de lucht via de overloop naar buiten blaast zit er een klep in de uitloopleiding die bij hoge druk afsluit.
De AIR moet dan wel naarr de AIR jets in de kuip.
Op zich slim, alleen blijft de klep open als het water overloopt. en dat is maar goed ook anders zou de AIR pomp verdrinken.
Maar ja, al het overtollige water loopt wel op de vloer en kruipt onder de SPA. En dat gaat stinken!
Hoe doet een ander (concurrent) dit dan? Die leveren vaak geen airblower.

Maar hier zie je een voorbeeld hoe het wel zou kunnen. De klep zorgt ervoor dat het water niet richting de airblower gaat. de bochten links zorgen ervoor dat het kleine beetje water wat ontsnapt in het dal linksboven blijft staan. Als de Blower aangaat dan blaast hij dit water vanzelf naar de kuip.
En zo zijn er tal van voorbeelden te vinden op internet.

Toen ik dit aan de servicemonteur vertelde (overigens een hele klantvriendelijke monteur) ging hij in eerste instantie mee in mijn idee dat de klep verkeerd zit. Hij twijfelde zelfs even aan mijn tekening en ging dit zelf controleren. Mijn tekening klopte. Maar na een telefoontje met de zaak kreeg hij te horen dat de klep zo goed zit. Ik ben het daar zelf niet mee eens.
Maar nu even over het minimale en maximale waterniveau.
Het verschil tussen beide niveaus is 68 mm bij een minimale vulling tot net boven de jet. 68 mm bij de beschikbare oppervlakte van de binnenbak is 156 liter. Bij het omschreven minimale vulniveau van de leverancier zou het waterverschil slechts 53 mm zijn. even nadenken, 156 gedeeld door 68 is 2,294117647 x 53 is 121,5882353 liter. als je dit deelt door drie personen dan mogen deze drie personen een volume innemen van 40,5 liter per persoon. stel dat een hoofd 5 liter volume heeft en je deze voor je eigen gezondheid boven water houd dan mag de gemiddelde persoon een maximaal volume hebben van 45,5 liter. 80 liter menselijk vlees is gemiddeld 79 kilo dus 45,5 liter is ongeveer 45 kilo. Alles wat je meer in de spa laat zakken zal er dus direct uitlopen aan water. gelukkig zijn wij maar met zijn tweeën. Dus 121 kilo gedeeld door wee personen is iets meer dan 65 kilo per persoon inclusief hoofd. Je mag je dan niet bewegen en het is verstandig om de SPA niet aan te zetten. Met zijn tweeën zijn wij dus 75 kilo te zwaar. Dit stinkt een beetje naar discriminatie van gezonde mensen, want laten we eerlijk zijn, volwassen mensen in Nederland van minder dan 65 kilo daar kunnen we alleen maar van dromen of we zijn doodziek!
Oh ja, ik zou nog even terug komen op de geurparels. als je ze in dit pijpje gooit dan worden ze door de blower naar de roosters geblazen waar ze achter zouden blijven hangen en verstopping zouden kunnen creëren. wellicht zou je iets met het buisje kunnen doen waar de parels inzitten, maar wie zegt mij dat we dat buisje er daarna weer uit kunnen halen? en komen deze geurparels dan in het water of wordt er alleen maar lucht doorheen geblazen? of komen de parels via de uitloop naar buiten? verstopt de klep dan niet?
Het antwoord moet ik u schuldig blijven, ik durf het niet uit te proberen!